VIVIENDA UNIFAMILIAR EN SANT CUGAT DEL VALLÈS

Categoría
Vivienda nueva construcción
SOBRE ESTE PROYECTO

PROYECTO: VIVIENDA UNIFAMILIAR EN SANT CUGAT DEL VALLÉS.

SUPERFICIE CONSTRUIDA: 157 m2.

FECHA DEL PROYECTO: 2022

FECHA FINAL OBRA: 2023

PROMOTOR: PRIVADO

 

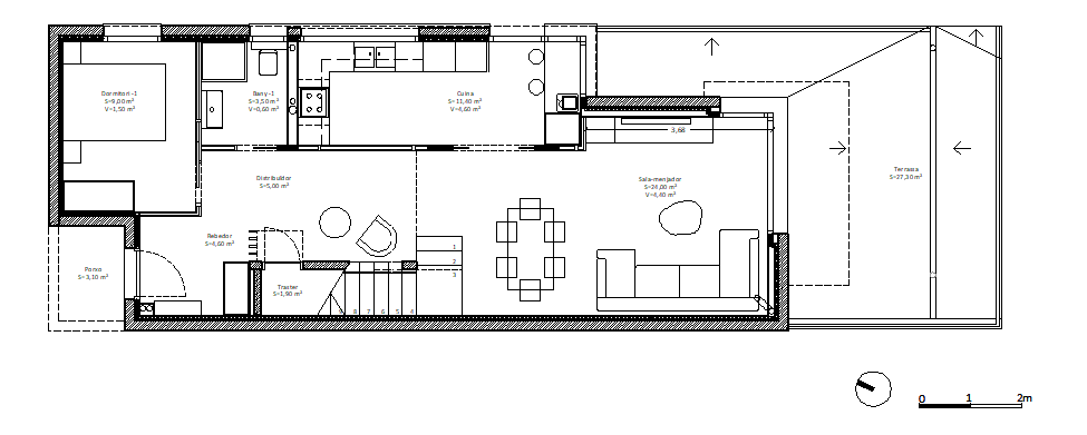
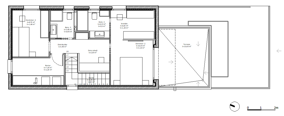
Se trata de una vivienda unifamiliar aislada, construida con sistema de paneles prefabricados de hormigón, que consta de planta baja y planta primera y una planta sótano, destinada a garaje.

 

El programa funcional de la vivienda se proyecta buscando la buena orientación de los espacios a la radiación solar.

En planta baja con un dormitorio y baño, en la zona noroeste que da a calle, y la zona de día de cocina y sala de estar-comedor están orientada a sureste. Esta zona de día se obre a la terraza; y en planta primera dispone de un dormitorio, un baño y zona de lavadero en fachada NO y dormitorio principal tipo suite en fachada SE, con acceso a la terraza de planta primera.

El edificio dispone de porches en fachada SE, tanto en planta baja como en planta primera, que permiten la entrada de la máxima radiación solar en invierno y lo protegen del exceso de radiación en verano.

El núcleo de comunicación vertical entre las dos plantas se ubica en fachada SO, y está formado por la escalera y previsión de ascensor.